ShodhKosh: Journal of Visual and Performing Arts
ISSN (Online): 2582-7472

VERNACULAR ARCHITECTURE OF JODHPUR: A RESILIENT APPROACH TO SUSTAINABLE ENVIRONMENT

VERNACULAR ARCHITECTURE OF JODHPUR: A RESILIENT APPROACH TO SUSTAINABLE ENVIRONMENT

 

Aruna Baghel 1Icon

Description automatically generated, Dr. Priyanka Mehta 2Icon

Description automatically generated, Dr. Anshu Agrawal 2Icon

Description automatically generated

 

1 Research Scholar, Department of Architecture and Town Planning, MBM College/ MBM University, Jodhpur, India

2 Assistant Professor, Department of Architecture and Town Planning, MBM College/ MBM University, Jodhpur, India

 

A black and white image of a tree with circles and a tree

Description automatically generated

A picture containing logo

Description automatically generated

ABSTRACT

Sustainable architecture is the application of principles that contribute in the evolution of building designs and processes that reduce the negative environmental effects of construction. When contemplating Jodhpur's vernacular architecture, it becomes clear that traditional construction methods correspond to basic green design principles such as using energy-efficient locally available materials and resources. Many traditional aspects of Jodhpur architecture can be easily incorporated into contemporary environments to provide a sustainable atmosphere and natural accompaniment. This study presents the scope of eco-friendly development of the city by using traditional construction techniques and materials, built forms, and fabric with a thorough analysis of the hot and dry climate of the area. It also encompasses the use of this local architecture to help create an energy- efficient thermal comfort zone in similar climatic conditions in any part of the world. This work is an attempt to reclaim the ideals about good architecture towards this setting, in not only terms of identifying the hot and arid climate but also in terms of producing a design philosophy relevant to the manner of living in a conventional city.

 

Received 15 October 2023

Accepted 18 April 2024

Published 26 April 2024

Corresponding Author

Aruna Baghel, aru.baghel@gmail.com

DOI 10.29121/shodhkosh.v5.i1.2024.732  

Funding: This research received no specific grant from any funding agency in the public, commercial, or not-for-profit sectors.

Copyright: © 2024 The Author(s). This work is licensed under a Creative Commons Attribution 4.0 International License.

With the license CC-BY, authors retain the copyright, allowing anyone to download, reuse, re-print, modify, distribute, and/or copy their contribution. The work must be properly attributed to its author.

 

Keywords: Jodhpur Architecture, Thermal Comfort, Hot and Dry Climate, Vernacular Techniques, Sustainable Architecture

 

 

 


1. INTRODUCTION

Jodhpur, a city in Rajasthan, embodies a landscape defined by alluvial plains, rugged hills, and expansive stretches of sand. Situated in the western region of the state, it occupies a barren expanse adorned with vast dunes. Through the utilization of indigenous natural resources in construction, there emerges a seamless integration and harmony between the built environment and its surroundings. According to the Egyptian architect Hassan Fathy, a building lives in the region to which it is related Rajashree & Sharma (2007). Due to its geographical positioning, this area faces significant challenges in sustainability, as expansive sand dunes dominate Jodhpur's western and northwestern reaches. In this area, the sand dunes are categorized into three distinct types: transverse, longitudinal, and metaphorical, each varying in altitude from 10 to 40 meters. Khadgata et al. (2023), Jain & Jain (2018) Situated in the arid-dry zone of Rajasthan, encompassing 11.60% of the state's dry expanse, Jodhpur boasts a slice of India's unparalleled Thar Desert. While the geography predominantly reflects desert terrain, there are slight variations in some areas. Despite this, the city has historically thrived as a hub of potential and resilience. Adorned with a magnificent fort, opulent Havelis (mansions), grand palaces, solemn cenotaphs, religious sites, and meticulously landscaped gardens, Jodhpur boasts a rich architectural heritage.

The region is rich in minerals, with sandstone and limestone being the primary resources extensively mined. Quartz, clays of various hues and dolomite further contribute to the diverse mineral wealth found here. Jodhpur is particularly known for its abundance of cream and red-hued sandstone, which is regularly quarried for building stones, stone chunks, and flagstones, adding to the city's architectural grandeur. Kaur et al. (2020)

The climatic conditions as sandstorms, high temperatures, fierce sunrays, and temperature differences are highly influenced by geology as latitude, longitude, altitude, and wind direction. Climatological Publication Section. (2009), Rao (2009) The city's settlement has established in response to these elements, rendering it with compact, dense, and with narrow lanes that help shade the buildings. It reflects that the architecture of the old city evolved in response to diverse human needs such as thermal comfort, aesthetic appeal, energy efficiency, and suitable use of vernacular materials and methods for the city's long-term development. Al-Sallal (2016), Pearlmutter & Berliner (1999)

Implementing passive strategies to decrease energy consumption not only supports cultural preservation but also facilitates the development of social gathering spaces, profoundly affecting people's lives. Baghel et al. (2022), Pardo (2023) This approach strikes a delicate balance between the energy demands of built structures, ensuring comfort regarding temperature and humidity, and fulfilling sociocultural needs.

 

2. URBAN FABRIC WITH MORPHOLOGICAL CHARACTERISTICS

Figure 1

A city with many blue buildings

Description automatically generated

Figure 1 Urban Fabric of the Jodhpur City

Source Author

 

Jodhpur's ancient city stretches around the Meharangarh fort as visible in Figure 1. The tough living conditions in the zone are exacerbated by the hot and dry climate, which results in sparse vegetation limited to xerophytes such as prickly Kikar (Acacia nilotica) and Khejri (Prosopis cineraria) in the vicinity.

 Table 1

Table 1 Analysis of Morphological Characters of their Past and Current Uses

CHARACTER

PAST USE

CURRENT USE

IMAGE

1. Narrow alleys Local Name – Gali Size - 5’ - 10’

20’ - 30’

These pathways naturally evolved to enhance connectivity and fulfill the crucial role of linking houses, enabling community members to meet their immediate needs effectively.

Jodhpur's walkways are deliberately small, influenced by the region's harsh weather conditions.

However, they serve an additional crucial role as powerful conduits for connection among dwellings, facilitating community interaction and meeting various needs efficiently.

    Source Author

2. Courtyard of varying scale for light and ventilation

Local Name – Chowk

10’-15’ X 15’- 20’

The courtyard was designed to give women a safe, ventilated space inside the home in which to engage in a variety of operations.

The center of the dwellings, Chowk is a courtyard that serves a variety of functions, such as drying spices and storing drinking water.

Source (Balzani, 2013)

3. Extended Raised Platform at Entrance

Local Name – Chabutara

2’ – 3’

To prevent storm water from entering the house, the Chabutaras had been constructed as elevated plinths.

Individuals can interact directly with the street and actively participate in street activities as a result of the raised plinth typology.

Source Author

4. Closely knit Houses & Cluster form

The cluster formation naturally gravitated towards the downhill side of the fort, fostering a sense of security and unity among its inhabitants, creating a cozy and tight-knit community atmosphere

This form of planning is beneficial to bear the intense heat stress of solar radiation.

As it share common wall, hence giving less exposed surface area to maintain thermal comfort.

Source (Author)

Source (Author)

 

In Jodhpur's historic inner core, a protected hamlet enclosed by a 10 KM barrier and eight entrances known as pol, the outward-facing roads surrounding the marketplace are typically 20 feet wide, occasionally expanding to 30 feet. Within the residential neighborhoods, the interior streets vary in width from 6 to 8 feet, occasionally reaching 10 feet and even narrowing to 5 feet in certain areas.

The distinctive blue hue of the homes, attributed to layers of limestone, copper sulfate, and indigo, serves to maintain cool temperatures during the hot months. Intriguingly, this color, rich with religious significance, has been historically associated with the Brahmin community. The narrow lanes of the neighborhood, such as Brahmpuri for Brahmins, Sunaron Ki Ghati for goldsmiths, and Bohron Ki Pol for financiers, are organized based on social strata and ownership, reflecting the unique fabric of Jodhpur's social and cultural landscape. Gajjar & Bhavsar (2019)

 

2.1. NARROW STREET AND ORIENTATION

The narrow alleyways with towering walls in certain areas cast shadows on the streets, effectively cooling them down. These dense streets, as depicted in Figure 2b, are strategically oriented east- west to minimize the transmission of solar radiation, as illustrated in the sectional view in Figure 2a. This arrangement also creates an irregular layout where the wind can be redirected, aiding in controlling sandstorms and enhancing comfort for residents. The layout of the complete cluster shows orientation and movement as visible in Figure 4a.

Figure 2

A blue painted alleyway with a drawing of a house

Description automatically generated

Figure 2 (a)Street Section of Jodhpur Arora (2018) (b) View of Narrow Alley.

Source Author

 

The dwellings are tightly clustered around a central courtyard, featuring minimal openings for movement and ventilation. Open spaces like courtyards, chabutaras, and chowks are crucial, serving as gathering spots for people of all ages to engage in various activities. See Figure 3a below for a visual representation. Reddy (2019).

Figure 3

Figure 3 (a) Chabutara - An Extended Raised Platform (b) Closely Knitted Houses Sharing Common Walls.

Source Author

 

This practice preserves the city's socio-cultural lifestyle and functions as vital communal spaces, which act as respiratory space for the urban fabric. The units are interconnected by shared walls with small openings strategically placed to reduce the ingress of heat into the buildings, as depicted in Figure 3.

 Figure 4

A drawing of a building

Description automatically generated

Figure 4 (a) Cluster and Street Layout of Jodhpur.

Source Arora (2018)

(b) cluster planning benefits

Source CPWD. (2013)

 

Cluster-based development of city with construction blocks results in a much more compacted infrastructure network, eliminates environmental impact, and increases urban sustainability as illustrated in Figure 4 diagramatically. This is facilitated by creating a moderately dense development and sharing spaces and amenities. ECBC. (2017)

 

2.2. COMPACT STREETS AND UTILITIES

The narrow alleys of the city of Jodhpur serve multiple purposes beyond just mobility. They enhance accessibility for pedestrians and simplify maintenance tasks, while also reducing the overall heat buildup in the urban environment. By integrating nearby buildings to provide social amenities and creating pedestrian-friendly streets, the city can not only reduce operational costs but also improve connectivity and community engagement.

Careful consideration of street geometry, solar positioning, and other design elements is crucial for maintaining a pleasant microclimate for commuters and residents alike. Strategic placement of galleries, vegetation, and shading mechanisms on building exteriors can help achieve optimal shading of streets, further enhancing comfort.

The concept of street usefulness, which encompasses factors like usage, operation, and dimensions, plays a vital role in urban planning. Whether it's designing pedestrian-only streets or accommodating motor traffic, the structural function of pathways must be carefully considered to optimize their utility.

Passive vernacular techniques are essential for ensuring thermal comfort in domestic buildings throughout the day. Facades with orientations towards the south, southeast, or east are particularly effective in maximizing natural cooling and minimizing heat gain, aligning with the principles of sustainable design and vernacular architecture.

 

 

2.3. COURTYARD

The courtyard serves as a vital element in mitigating the effects of the intense heat prevalent in communities where it is predominant. In these densely populated areas, the courtyards are often compact and confined, offering immediate relief from the scorching temperatures. The architectural layout typically consists of shared walls erected closely together to provide protection from the harsh sun, with minimal openings to the outside, resulting in an inward-facing dwelling form. Taleghani & Tenpierik (1986), Arya (2013)

Despite the constrained nature of these structures, the courtyard serves as a crucial element in achieving necessary permeability as given in Figure 5b. It acts as a sponge-like mass within the congested urban fabric, providing visual relief amid the density. By opening up the built structure towards the atmosphere and incorporating functional elements, the courtyard becomes a focal point around which the building's activities are organized, offering a multifunctional space that enhances livability in the face of challenging environmental conditions.

Figure 5

Figure 5 (a) A Dense Urban Settlement of Compact Built Form with Courtyards and Terraces in Jodhpur Rajasthan India. (b) Courtyards in Cluster, Jodhpur.

Source Author

 

The kitchen in Jodhpur households often extends into the courtyard, allowing natural light to enter the interiors. The courtyard serves as a communal space where families gather, including intimate friends and relatives. In this environment, the boundaries between personal and social, internal, and external spaces become blurred. Fardeheb (2007), Jha & Dave (2023)

Figure 6

Figure 6 Courtyard in Jodhpur Traditional House Arya (2013)

 

The margins of the courtyard are typically aligned with the external facade of the building, highlighting its role as an internal outdoor area. Traditional construction materials such as wood, earth, and stone are commonly used which is clearly visible in Figure 6. Due to their limited spanning capacity, architectural features like colonnades, rooms with niches, doors, openings, staircases, balconies, and Jharokhas are incorporated into the design.

Courtyards indeed offer a range of benefits, including clean air, sunlight, and natural thermal regulation. They act as microclimate modulators within homes by mitigating extreme temperature changes, channeling breezes, and adjusting relative humidity levels.

 

2.4. MARKETS

Traditional bazaars play a crucial role in city planning, serving as vital centers for retail and wholesale commodity exchanges. These vibrant hubs of social interaction are strategically organized within urban landscapes. Upadhyaya (2017) bazaars are fundamentally pedestrian- oriented and tend to expand in response to demand rather than through deliberate planning.

Traditionally, bazaars exhibit a distinct linear expansion pattern, representing a key aspect of mobility in city life. They are characterized by diverse socioeconomic classes of people, as depicted in Figure 7, akin to the communal nature of a Mohalla.

Figure 7

 A group of people on a motorcycle in a street

Description automatically generated

Figure 7 Marketplace in Jodhpur

Source Author

 

2.5. TALABS

A "talab" refers to water reservoirs commonly found in valleys and natural depressions in the area. In the past, only the sloped sides of old talabs were fortified with sturdy parapet walls to retain rainwater as shown in Figure 8. These talabs once served as the primary source of drinking water for locals but are now mainly utilized for cattle watering and irrigation. Once the water in these reservoirs is depleted, the beds are repurposed for agricultural activities. Talabs can be either naturally occurring, such as the ponds (pokhariyan) at Badli talab in the Jodhpur region, or man- made. Larger water bodies are referred to as "sagar" or "samand," while reservoirs smaller than five bighas are termed "talai," and lakes of moderate dimensions are known as "bandhi" or "talab." Pokhariyan serve both domestic and agricultural purposes. The arrangement of water bodies, along with built structures and open areas, not only provides essential amenities but also contributes to maintaining a serene environment in the neighborhood.

Figure 8

Figure 8 Talab Gulab Sagar and Baccha Jhalra Surrounded by the Dense Urban Sprawl

Source Author

 

2.6. BUILT WATER BODIES

Jodhpur boasts significant groundwater bodies in the form of numerous wells, Baoris, and Jhalaras, as illustrated in Table 2. These structures were constructed with the primary purpose of ensuring a steady and accessible water supply to the surrounding areas. They do not have their own catchments and are not connected to any river; instead, each one collects underground seepage from an upstream Talab or lake. These structures vary greatly in shape, size, depth, design, layout, and location.

To optimize resources, construction efforts focused on minimizing space usage. Notably, the presence of Peepal trees, or Ficus religiosa, at key intersections and areas provided shaded spots for people to cool off during hot summer afternoons in places like Ranisar and Padmasar Gopinath (2000), Chatterji & Vangani (1988).

Over the past two centuries, Jodhpur has established a total of five primary artificial reservoirs for water bodies. The most recent addition, Paota, was constructed in 1887, while the first, Fatehsagar, dates back to 1780. Among these reservoirs, three are located within the city, while two are situated outside. Fatehsagar, Gulabsagar, and Baiji-ka-talab are the larger water reservoirs located at the first three locations. Both Paota and Mansagar, are comparatively substantial. The administration closely monitored their maintenance, sanitation, and regular upkeep.

Table 2

Table 2 Different types of Water Bodies and their Functionality in the Current Times

Water bodies

FUNCTIONALITY

CURRENT IMAGE

TALABS

Durable parapet walls were built along the incline to catch rainwater. Outcrops of hillocks or raised rocky deposits backed each of the sides in nature.

Massive bodies of water, such as Gulab Sagar, not only meet the city's water needs, but enable leisure activities within their outskirts.

A water body with a castle in the background

Description automatically generated

Ranisar Talab Source Balzani et al. (2013)

Built water bodies

 

Travel with sharad vyas: महिला बाग़ झालरा, जोधपुर

Mahila Bagh ka Jhalra Source (Author)

BAORI/BERI

In contrast to other water bodies, Baoris are capable of holding water for an extended period due to barely any water evaporation.

Rainwater storage can be found at multiple places throughout the city.

JHALRA

Toorji Ka Jhalara, a stepwell built in 1740, underwent a recent revitalization with vibrant shops, restaurants, hotels, and cafes for tourism.

It is an inverted pyramid constructed as a stepwell to store water. This contributes to a calmer atmosphere and religious activities.

Aquatic organisms around the tank, which are fed regularly by the locals.

Toorji ka Jhalra Source (Author)

TAANKA

Taankas are important rainwater harvesting platforms in the Thar Desert that supply drinking water to rural areas.

Analysts emphasize the value of catchment efficacy, making it worth more.

Taanka Source Tyagi (2023)

PAAR

The primary form of collecting rainwater in rural areas near Jodhpur city

The water collected during the monsoon rains can be maintained for the next 6 to 8 months.

Paar Rural Jodhpur Source Saxena (2017)

 

2.6.1.  LOCATION OF WATER BODIES

Water serves as an effective microclimate modulator, particularly in hot and dry climates, by facilitating evaporative cooling, which absorbs a significant amount of heat. The strategic placement of water features such as Jhalras at periodic intervals around the city not only helps in water supply but also contributes to creating a cooler environment. Rai & Mishra (2023)

 

2.6.2.  BAORIS / BERS

In Rajasthan, there exists community wells primarily intended for providing potable water. Many of these wells are quite old and were originally constructed to meet the drinking water needs of Banjara communities, which were mobile trading communities. Unlike regular wells, these wells have a shallower depth but feature magnificent arches running their length, allowing them to retain water for extended periods due to minimal evaporation.

One such example is Tapi Baori, where despite most houses being of older construction, the area lacks the uniform blue appearance seen in Brahmapuri. Instead, the structures exhibit a variety of hues. The narrow streets and densely built-up areas are adorned with Peepal trees, although their numbers have declined over the years.

 

2.6.3.  JHALARA

Jhalars are groundwater reservoirs designed to ensure a consistent water supply to the surrounding area, as depicted in Figure 7. They gather underground seepage from upstream talabs or lakes Hussain et al. (2014), Saxena (2017). Unlike traditional reservoirs, Jhalars do not have a separate watershed area; instead, they collect underground water infiltration from lakes or talabs upstream. Jodhpur city boasts eight Jhalars, with two situated within the city limits and the remaining six located outside. Among these, Mahamandir Jhalara, established in 1660 A.D., holds the distinction of being the oldest. Notably, water from these Jhalars was traditionally used exclusively for communal washing and religious activities, rather than for drinking purposes. An exemplary case of environmental preservation is the "naadi" in Bhagtasni village near Jodhpur, which locals claim to be around 200 years old. And also plays a vital role in the villagers' daily lives. Patil (2020)

 

2.6.4.  TAANKA

A taanka, also known as a tanka or kunds, is a traditional rainwater harvesting system utilized to provide potable water security for a single household or a small cluster of families. Typically, a taanka comprises a covered, underground impermeable cistern, as depicted in Table 2. This cistern is commonly constructed using materials such as stone, brick, or concrete, with lime mortar or cement plaster applied for finishing. Precipitation or subsurface drainage from rooftops, courtyards, or intentionally constructed catchments (known locally as agor) enters the tank through screened inlets and outlets in the pit wall. Storing rainwater in the taanka eliminates the need for individuals to travel long distances for daily water needs, reducing the risk of contamination from other water sources.

Traditionally, family-managed taankas are constructed by excavating a hole with a diameter ranging from 3 to 4.25 meters and covering it with a 6 mm thick lime mortar cement layer, accompanied by a uniform 3mm thickness cement plaster Konar (2007). Most contemporary taankas have a capacity of approximately 21,000 liters, although larger sizes can be constructed if space permits. To facilitate water extraction, a galvanized iron cap is installed within the cover. Ventilated taanka covers help maintain the freshness of stored water, with openings designed to allow excess moisture to escape during the monsoon season.

 

2.6.5.  RAIN WATER HARVESTING (PAAR SYSTEM)

In the western region of Rajasthan, "paar" is a traditional technique for water collection. In this method, rainwater is directed to an agar bed (catchment area), where it seeps into the sandy substrate. Kuis or beris are then excavated in the agor (storage area) to access the rajani pani (filtered water). Typically, these kuis or beris range in depth from 5 to 12 meters, and the construction employs conventional masonry techniques. A paar typically consists of six to ten kuis or beris, but the specific number is determined by the size of the paar Vaishnava (2023) In the Jodhpur region alone, there are currently over 20 operational kuis, making this rainwater collection method quite prevalent in the area. The collected rainwater using the PAAR technique is referred to as "Patali paani."

 

3. TRADITIONAL ROOFS

The roof plays a vital role in harnessing solar radiation for solar heating, facilitating natural lighting, and promoting air circulation. In Jodhpur, sandstone is traditionally employed in constructing roofs. Leveraging its thermophysical properties, this massive stone serves as a heat collector, absorbing and retaining heat during the day and releasing it into the interior through radiation and convection during the colder hours and seasons. This process helps maintain a relatively constant interior temperature. Mourad et al. (2005), Modi & Baghel (2021a), Ka & Mahotsav (2021)

Table 3

Table 3 Elements of Traditional Roof Construction in Old City with their Specifications

ROOF CONSTRUCTION IN OLD CITY

S. No

Element of Roof

Type

Specifications

1

Material

Sandstone

Color - varies from red, pink, brown and white Compressive Strength - 390 Kg/cm3

Water Absorption capacity 1.25%.

Density - 2.42 Kg/m3

2

Roof shape

Flat

Stone patties placed on girders (e.g. stone, iron, or wooden girders) plastered with a layer of lime aggregate.

Thickness 350- 600 mm

Maximum span of 10’ – 12’

3

Mortar

Traditional

Lime, surkhi (brick dust)

Organic sands and gravels as well as materials like crushed shells, crushed rocks—especially sandstone—and sometimes limestone and brick fragments are common aggregates used in lime mortars.

4

Roof surface

Reflective

Reflective mosaic tiles also called tukdi with high albedo is constructed as a final finish to the roof surface to reflect sunlight back.

5

Parapet wall

Perforated

Jaalidaar screens or simply a pattern of perforated wall allowing the flow of air through it.

Size of perforation ranges from 1”- 4” and also on design of jaali

Source Author

 

3.1. LOCAL MATERIALS

Natural stones, particularly the sandstone from Jodhpur known as "chittar patthar," are abundant in Rajasthan's western region. This type of sandstone is widely utilized in various architectural marvels, elegant structures, and residential homes. Its versatility is evident in its applications, including roofing, decking, pavement, paneling, beams, columns, archways, doorways and window sills, wall cladding, lamp posts, and milestones, among others.

Table 4

Table 4 Available Local Materials in Traditional Construction

S. N.

Buildings

Salient features

Preferred climate

1

Mud block (MB)

Thick mud walls with high thermal mass reduce indoor temperature fluctuation

Air cavities in the roof and ceramic tiles over the roof to reduce solar heat gain

Arid and semi-arid regions

2

Stabilized mud block

Cooling by stack effect

Wooden carving below the roof reduces the radiative heat transfer from the roof

3

Stone Patties

Thick stone walls reduce the indoor the indoor temperature fluctuation

Central courtyard for adequate daylighting

Arid regions

Source Goussous et al. (2023)

 

3.2. AVAILABILITY

Jodhpur Sandstone is particularly abundant and easily accessible due to its shallower depth and straightforward extraction process. This type of sandstone originates from a depositional environment characterized by distinct layers (stratification), making it conducive to grooming, sculpting, and polishing into various shapes as required. Renowned for its appealing red, brown, and pink hues, as well as its structural attributes such as cross beds and ripple marks, Jodhpur Sandstone possesses excellent splitting ability, endurance, and toughness. Consequently, it is extensively utilized in modern construction projects across India and overseas. The sandstone extraction and processing industries in the region have sustained for many years, supplying raw materials to both the dimensional stone and construction sectors. Kaur et al. (2020)

Table 5

Table 5 Geological Nature of Jodpur Sandstone and its Availability in Vicinity.

Jodhpur stone and their availabilty with its geological nature

Places in jodhpur

sursagar

keru

balesar

satrava

colour

Mainly pink

creamy

Pinkish brown to greyish brown

Light reddish brown to greyish

Mainly brown

redish

Thickness of sandstone

10-20m

8-15m

5-12m

5-8m

Type

of building material

Mainly

Sizes stone & roofing slabs

Mainly roofing slabs

Roofing

slabs, partition slabs and stone bricks

Roofing

slabs, partition slabs and stone bricks

Annual tonnes)

Production (in tonnes)

7 million

1 million

1.5 million

o.5 millions

Source Kaur et al. (2020)

 

 

 

3.3. CONSTRUCTION

Stone panels are utilized to overlay the roofing, which is supported by natural wood beams and rafters and sealed with lime mortar. These stone slabs are anchored by timber beams and joists, tailored to fit in specific areas, and covered with lime concrete before being sealed with lime mortar. The utilization of organic sandstones, known for their lower thermal conductivity, contributes to maintaining cooler temperatures within the room, particularly during periods of intense heat . Although some materials may experience deformation due to temperature and direct sunlight exposure, sandstones exhibit remarkable resistance to such processes. Additionally, stones are highly effective in withstanding humid conditions and strong winds, rendering them resilient against potential damage from these environmental factors. Doctor-Pingel & Vardhan (2020)

 

3.3.1.  RUBBLE COURSE MASONRY

Stone external walls offer significant advantages in temperature control due to their substantial. The construction of these walls is labor-intensive but contributes positively to economic growth. Dressed stonemasonry obviates the need for plastering, making it a prevalent structural system in regions like Rajasthan. Stones used in this construction are typically wider and may be roughly dressed or left undressed, falling into categories such as uncoursed, coursed, arbitrary, hydrated, polygonal, and hang masonry. Among these, random rubble masonry is the least expensive and roughest, utilizing stones directly from quarries, which vary greatly in size and shape. Weak spots and edges are addressed using a Masonry hammer. Typically, larger stone blocks are employed at quoins and jambs to reinforce the masonry. Nations et al. (1992), Sharma et al. (2018)

 Figure 9

A diagram of a stone structure

Description automatically generated

Figure 9 Elevation Section and View of Random Rubble Masonry to Show Construction Details. Source Nations et al. (1992)

 

3.3.2.  SANDSTONE AS A STRONG MATERIAL

Sandstone is a substance formed through the sedimentation process, where flakes of sand accumulate on top of one another in slabs. These multiple layers act similarly to ply, providing the necessary strength properties for flat roofs. As a practical building material, sandstone exhibits exceptional moisture regulation behavior. However, careful consideration must be given to its use within well-planned wall sections, particularly in desert environments where building materials may need to withstand unusual weather conditions, such as rain. Testing in the typically hot and dry Indian desert environment has demonstrated that sandstone is a viable building material with excellent characteristics related to water absorption and enforcement Makhlouf et al. (2019)

 

3.3.3.  FLAT ROOFS FOR TEMPERATURE REGULATION

Flat roofs offer advantages for temperature control compared to inclined roofs, vaulted, and domed structures. Hernández-Pérez et al. (2014) Due to their lower surface area, flat roofs experience reduced heat transfer gains. Moreover, in regions with limited rainfall, flat roofs are preferred to conserve water. These roofs are designed to collect precipitation and channel it to an underlying reservoir or storage tank for use by residents. The effectiveness of insulation against heat transfer on a building's exterior facade, such as a flat roof, is indicated by its thermal transmittance, or U value. This value represents the rate of heat transfer per unit area of the roof for every degree of temperature difference between the interior and exterior of the building. Flat Roof Design: Thermal Insulation. (1976)

The primary requirement for a thermal insulative material is its ability to resist heat transfer, determined by factors such as thickness and thermal resistivity. In the context of flat stone patti roofing structures supported by 18-inch thick dressed stone walls, these materials demonstrate effective thermal insulation. The stone slabs utilized in Jodhpur are not only readily available but also cost-effective. Additionally, the installation process is expedited as the stone slabs only need to be raised to the roofing and positioned on the supports.

 Figure 10

A collage of a brick wall

Description automatically generated

Figure 10 (a) Stone Patti Slab is Used in Place of R.C.C. slab (b) Stone Patti Lintel is Used in Place of R.C.C. Lintel.

Source Sharma et al. (2018)

 

3.3.4.  CEILING AS STONEPATTI SLAB

Stonepatti slabs offer a viable alternative to R.C.C. slabs due to their leveled nature, absence of steel, cantering, and shuttering requirements, as well as their ability to enhance energy efficiency. Moreover, stone slabs are cost-effective in regions like Rajasthan where they are readily available. The installation process is also expedited as stone slabs only need to be transported to the ceiling and placed on the beams. Stone strips, known as patties, are attached to steel or iron girder supports to construct the roof, with lime mortar used to fill the gaps between the stone strips. These structures often incorporate inner courtyards to maximize natural light intake and incorporate rainwater harvesting systems to address water scarcity in arid areas. The small openings in these structures minimize airflow, which is advantageous in hot and dry environments. With their high thermal mass, Stone Patti structures are particularly well-suited for hot-arid regions. Khoukhi & Fezzioui (2012), Leo Samuel et al. (2017)

Figure 11

A brick wall with a green fence

Description automatically generated

Figure 11 The Roof of a Stone Patti Arrangement (on the left) and Dressed Stone Masonry (on the Right).

Source Reddi and Joglekar (2005).

 

3.4. pTRADITIONAL MORTAR FOR EFFECTIVE COOLING

Traditionally, Surkhi, a mixture of brick bat, lime, maravajra (organic adhesive), and Antvalakai (gum fruit), was commonly used as an impermeable covering to maintain cool roofing surfaces. However, this practice has declined in prevalence due to a lack of expertise and awareness. Lime mortar has emerged as a more effective alternative, offering superior tensile and compressive properties. Its hygroscopic and porous outer layer plays a crucial role in stabilizing surrounding air temperature and humidity levels. Thirumalini & Sekar (2011), Patil (2015)

According to the Indian Energy Conservation Building Code (ECBC) and National Building Code (NBC), lime is particularly suitable for "hot and dry" regions as a construction material. In such climates, the use of white surfaces reflects sunlight, reducing exterior temperatures, while the porous nature of lime helps regulate indoor moisture levels. Gallo (1994), Doctor-Pingel & Vardhan (2020)

Table 6

Table 6 Traditional Organic Materials Used in Lime Mortar for Construction in Jodhpur

USAGE OF TRADITIONAL ORGANIC ADDITIVES IN LIME MORTAR (JODHPUR)

S. No.

Additives

Purpose

1

Curd

Finishing

3

Jute fibre

Bonding

4

Raw sugar

Retarding

5

Straw

Bonding

6

Glue

Crack prevention

7

Jaggery

Hardening

Source Thirumalini & Sekar (2011)

 

3.5. MOSAIC FLOORING TO REFLECT RADIATION

To maximize daylight reflection on the rooftop, a layer of lime mortar was applied to the top of the building, as suggested by Modi & Baghel (2021a). This layer was then finished with a smoother material, incorporating shattered porcelain pots for a white wash effect. The deliberate use of light- colored roofs, with a solar reflectance index (SRI) of at least 50%, contrasts with conventional dark- colored roofing finishes, which typically have an SRI ranging from 5 to 20%. Employing light- colored tiles and broken china mosaics as roof finishes exemplifies a practical approach to achieve high solar reflectivity (SRI). These materials efficiently reflect heat off their outermost layers due to their high levels of infrared radiation emittance and solar reflectivity. Consequently, this reflective quality reduces heat gain and mitigates the need for excessive cooling measures in the building surroundings, as highlighted by the Energy Conservation Building Code ECBC. (2017).

Table 7

Table 7 Typical Values of Various Reflective Surfaces to Reduce Solar Heat Gain Through Roof.

Typical approximate values of various surfaces (albedo)

S. No.

category

percentage

1

Dark surfaces

10% - 30%

2

White colored surfaces

70% - 80%

3

Heat resistant surface tiles

70%

4

White ceramic tiles

70%

5

High reflective paints

80%

Source Arora (2018)

 

3.6. PARAPET WITH JAALIS

The utilization of jaalis in the rooftop parapet enables cross ventilation, as described by. This architectural feature facilitates the circulation of air over the overheated roof surface, aiding in temperature reduction during the day and enhancing heat transfer at night. This phenomenon is illustrated in Figure 12, depicting how air movement over the hot roof surface effectively cools it down during the daytime and expedites heat loss during nighttime.

Figure 12

Figure 12 Parapet with Jalis to Allow Cross Ventilation.

Source Author

 

4. WALLS

To enhance thermal performance, traditional houses were designed with thick walls, floors, and roofs. These structures, constructed using locally available materials like clay (adobe) and sandstone, were favored for their ability to withstand the elements and their abundance in the region. In places like jodhpur, particularly in hot desert climates, these materials were integral to vernacular architecture. For instance, the stone patti structure commonly employed dressed stones and reconfigured blocks, utilizing larger stones to minimize the need for lime. Such construction techniques were well-suited to hot-arid regions characterized by significant diurnal temperature variations. The thick walls made of stone with a high thermal mass effectively moderated temperature fluctuations within the structure, contributing to improved thermal comfort.

 

4.1. THICK WALLS

Thick walls serve as superior insulators against the sun's rays, prolonging the time it takes for outside heat to penetrate. The thicker the wall, the slower the heat transmission. Let's consider a scenario where a wall receives the most heat at 4 p.m. in June. If the wall is 40 cm thick and constructed of stone mortared using lime or cement, by 3 a.m., the heat will have traversed through transmission and reached the innermost layer. At this time, the ambient temperature would have dropped from 45 degrees Celsius to 25 degrees Celsius. Thanks to the substantial thickness and significant thermal insulation of the outer wall, indoor temperatures are maintained within a reasonable range. Moreover, Goussous et al. (2023) suggest that the interior temperature within the wall exhibits little correlation with outside temperatures due to its thickness and insulation properties. This also implies that the wall's exterior decrement factor is lower when compared to contemporary structures in the vicinity. Modi & Baghel (2021b)

 

4.2. STONE SLABS AS LINTELS

Stone lintels are frequently used instead of reinforced concrete (R.C.C.), eliminating the need for steel or concrete in the lintels or slabs. To reduce cement usage, large stones are embedded into concrete within a rectangular frame, and then cured for two weeks before incorporation into the masonry structure. These robust lintels impart strength, durability, and timeless charm to buildings. Given the abundant supply of natural sandstones, stone lintels are a prevalent feature in Jodhpur.

 

4.3. CEILING HEIGHT

In traditional homes, the ceiling pitch is typically kept high, ranging from 14 to 18 feet. This elevated ceiling height not only increases the volume of the room but also mitigates the impact of solar radiation. It contributes to a more comfortable environment during the summer months by facilitating the movement of warm air. Compared to structures with lower ceilings, this increased height creates a larger enclosed space, which takes longer to heat up. Moreover, the higher room height allows for the installation of effective ventilators, which can remove hot air and improve airflow and ventilation.

 

4.4. MAINTAIN TEMPERATURE

The Increasing the bulk of wall surfaces significantly enhances their thermal holding capacity. These walls absorb heat throughout the day, helping to keep the interior cool. At night, they release the stored radiant heat into the inner space, helping to regulate the temperature. Jodhpur sandstone, characterized by tiny grains of quartz and other minerals with a fairly uniform size, is often smooth and rounded. This composition results in minimal thermal conductivity, making it an excellent insulating material. Additionally, it is cost-effective, readily available, and has a low embodied energy, making it ideal for the production of building components. Kaur et al. (2020)

 

 

5. WINDOWS

In such hot environment, the exterior of buildings features apertures of various sizes and counts. In hot climates, particular attention is given to the northern facade, which faces southward, as depicted in Figure 13a. This orientation is crucial because it receives direct radiation from the sun before and after midday.

Figure 13

Figure 13 (a) Jharokhas in Over Narrow Streets (b) Shading by Jharokhas and Sun (c) A Typical Projected Jharokha.

Source Author

 

5.1. JHAROKHAS

Jharokhas, a distinctive architectural feature of the region, offer excellent shading capabilities as depicted in Figure 13b. Positioned on the southern edge, these windows effectively block the harsh east-west sunlight, exemplified in Figure 13c. Typically crafted from sandstone, Jharokhas are ornamental projections from Havelis, resembling intricately carved boxes, with dimensions typically measuring 3' by 6'. They feature a passage and a sandstone floor topped by an arched canopy, casting a shadowy ambiance onto the street below. Gallo (1994), Afreen et al. (2018)

An architectural element protruding around the aperture not only enhances privacy and aesthetics but also offers glimpses of the street view. During summer, it aids in filtering sand-laden breezes while regulating airflow and cooling internal spaces. Conversely, when sunlight penetrates during the day, diffused light permeates the interiors. For optimal outside views, cutouts are strategically placed at eye level, catering to viewers seated indoors Kumari et al. (2020).

 

5.2. SMALL WINDOW

A compact window on a large wall, in vernacular constructions of desert, enables the airflow to move into the structure with more strength. When high-velocity winds enter a larger area, they disperse rapidly, effectively regulating interior temperatures. Employing such rudimentary construction techniques, like a wind tower, inner courtyards with latticed screens, and small openings, proves instrumental in blocking sunlight and optimizing air circulation.

 

5.3. JAALI (SCREENS)

In this climate, these architectural features play a vital role and are widely employed. They offer seclusion, regulate ventilation, and effectively lower indoor temperatures. Even in bright daylight, these spaces maintain privacy from the outside while allowing dispersed light to illuminate the interiors, as depicted in Figure 14a. Additionally, cut-outs at eye level, illustrated in Figure 14b and Figure 14c, enable observers seated on the floor to enjoy clear external views.

Jaalis, or latticed screens, further enhance airflow through their slits, facilitating natural air circulation. Notably, they offer women the opportunity to enjoy panoramic vistas without compromising their privacy.

Figure 14

A drawing of a person's face

Description automatically generated

Figure 14 (a) Shading of Window and Wall Surface by Jaali Screens (b) Small Window Used to View in Forts (c) Window for View and Jali for Ventilation.

Source Shah (2017)

 

5.4. TRADITIONAL SHADING METHODS

Environmental conditioning is achieved by various means, including the blocking of sunlight, reducing solar heating, and slowing down heat conduction. Sunshades play a crucial role in this process, not only shielding windows but also protecting walls from direct sunlight. Particularly in vernacular architecture, deep and inclined sun screens offer significant benefits, covering a larger surface area, as depicted in Figure 15a and Figure 15b. Moreover, extensive sculpting on building exteriors results in reciprocal shadowing throughout the day and evening, while the increased surface area facilitates enhanced convection heat transmission to the atmosphere Heidari et al. (2021). Kumari et al. (2020)

Figure 15

A drawing of a building

Description automatically generated

Figure 15 (a) Shading of Building Surface by Surface Texture (b) Shading of Building Surface by Architectural Projections

Source CPWD. (2013)

 

6. TRADITIONAL ARCHITECTURE IN RURAL JODHPUR

Vernacular architecture characterizes the informal yet practical construction of rural dwellings in Rajasthan. These homes, crafted with local materials, are tailored to meet the specific needs of the local communities. Constructed by craftsmen lacking formal architectural training, these buildings reflect the incredible diversity of Rajasthan's environment, drawing upon locally available materials and respecting the complex nuances of community norms and culture Rathore et al. (2018).

It's estimated that approximately 90 percent of all buildings in rural Rajasthan embody the principles of vernacular architecture. Crafted by local artisans, these structures are intended for everyday use by the region's inhabitants. Traditional environmentally friendly materials such as mud walls and thatched roofs are commonly employed in these dwellings, aligning with sustainable building practices prevalent in the area.

 

6.1. RURAL HOUSE ROOF

The 'Kheep,' a sturdy desert grass, is commonly utilized for roofing in vernacular construction. Typically shaped in a conical or angled manner, these roofs effectively repel water. During the summer months, they help maintain a cool interior environment, as depicted in Figure 16.

Cob, a natural building material composed of subsurface, straw, lime, and water, is another prevalent element in local construction techniques Dabaieh (2011). The process involves shaping a sizable lump of cob mixture into an elongated egg-like form, approximately 12-18 inches in length and 6 inches in diameter. These circular cobs are then arranged in rows, compressed, and stacked atop one another. After up to four courses have been laid, the edges are leveled to address any holes or cracks. Thereafter timber rafters are positioned directly onto the wall, with their ends supported by the wall and fastened using pegs. This method ensures structural stability and durability.

Table 8

Table 8 Elements of Traditional Roof Construction in Rural Areas with their Specifications

CONSTRUCTION IN RURAL AREAS

S. No.

Element

Material

Specifications

1

Material

Sandstone Adobe

Dry construction with Stone chips also called fatchras for boudary wall

surrounding materials like, mud, thatch, bamboo and lime, clays blocks prepared with soil.

2

Roof shape

Elongated egg

Rees and steams mixed with mud to provide strength with wooden girder at the centre

3

Wall

Thick walls

Mud walls or clay brick walls plastered with cow dung.

Source Author

 

Figure 16

A straw hut in a desert

Description automatically generated

Figure 16 Traditional Rural Houses Mud Construction

Source Kumari et al. (2020)

 

6.2. RURAL HOUSE WALL

To regulate heat and repel insects, indigenous huts often receive an exterior coating of cow manure. Additionally, widening the walls to 45cm helps delay heat exchange between the outer and inner environments. Sandstone emerges as the optimal material for this purpose due to its effectiveness and cost-efficiency. The construction method involves layering stones atop one another, creating what is known as dry stone structures or arranged stone walls, devoid of cement or mortar Goussous et al. (2023). These layer stone walls are meticulously assembled, with carefully selected stones interlocking to provide strength and stability. The weight and interlocking design of the stones impart rigidity, enabling the wall to withstand lateral forces such as earthquakes and winds. Moreover, since mortar joints don't degrade over time, layer stone walls require minimal upkeep, offering long-term durability and structural integrity.

 

6.3. CULTURAL HABITS AND TRADITION

In Jodhpur, where the streets are inherently public spaces, privacy is achieved at the household level, with the boundary serving as delineation between formal and informal areas. This social structure not only seeks seclusion from bustling thoroughfares but also plays a crucial role in enhancing energy efficiency Sharma et al. (2018). The layout and orientation of homes further contribute to privacy, with courtyards serving as central hubs for illumination and ventilation, evolving their own vernacular expressions suited to the locality and era.

The city offers numerous opportunities for users to engage with architectural design, evident in the transformation of roads into open spaces that integrate seamlessly with local lifestyles. These communal spaces, initially conceived to mitigate the harsh summer sun, continue to serve as gathering points, fostering a sense of community despite evolving family structures. However, their integrity has suffered over time, leading to a decline in communal spirit and a sense of ownership, impacting the city as a whole.

Elevated plinths demarcating formal and informal zones act as porticoes for individual buildings, a stratification evident even in walkways where storefronts feature higher plinths to shield customers from adverse weather and cool the interiors Patil (2015), Sridharan et al. (2019). These Chabutras, or elevated platforms, serve as sanctuaries and transitional spaces between social and economic spheres. However, they have been largely overlooked in the design and development of new commercial districts or streetscapes, resulting in abrupt building transitions and a lack of cohesive urban planning.

 

7. ANALYSIS WITH REGIONS FACING IDENTICAL CLIMATIC PLIGHT

Vernacular approaches to environmental adaptation in Jodhpur often parallel techniques found in regions with similar climatic conditions. For instance, vernacular air circulation methods used in hot, dry climates are prevalent in countries like Egypt, Iraq, Iran, and certain arid zones in Australia, such as Camooweal.

The Malqaf, a 3300-year-old exterior air-capturing method employed in Egypt, shares similarities with the Badgir vernacular technology used in Iran and the United Arab Emirates. Malqaf principles have been integrated into modern designs, such as the Torrent Pharmaceutical Company's research center in Ahmedabad, India, and the Mining and Minerals Museum in Broken Hill, Australia, designed by Glenn Murcutt Sakr (2011)

Similarly, wind catchers, employed by Hassan Fathy to enhance thermal comfort indoors in hot arid desert regions like ancient Cairo, are prevalent in Iran. These tall towers function as canals, guiding cool winds into constructions and ventilating rooms through the chimney effect. In Yazd architecture, wind catchers are used to create summertime spaces or cellars. Mahdy (2018)

In Turkey, individuals have ingeniously utilized soft rock to excavate their dwellings, taking advantage of the ground's depths as a natural refrigerator for food storage. Similarly, in Matmata, Tunisia, the entire town is constructed underground to mitigate the region's unbearably hot arid climate and act as a thermal barrier. The terrain plays a crucial role in climate regulation for suburban living in Matmata, shielding residents from intense solar radiation and sand-laden winds. Additionally, leveraging the gradients of hills allows for the creation of shaded pathways, enhancing comfort and usability in outdoor spaces. These practices demonstrate the resourcefulness of vernacular architecture in adapting to and mitigating challenging environmental conditions as shown in Figure 17a and Figure 17b.

Figure 17

Figure 17 (a)- Tunisia Construction Technique for Digging Residence Within Hill (b) In Siwa, Egypt, a Staggered Method is Used for Establishing Sheltered Routes to Prevent Higher Solar Intensity.

Source Mahdy (2018)

 

In scorching regions like Egypt, the use of Rammed Earth construction, strategically placed openings, and traditional roofing techniques have significantly reduced energy consumption during the summer months. These methods provide effective heat insulation, soundproofing, and protection against dust from the external environment. Consequently, there is a decrease in the heating and cooling demands of mechanical systems, leading to reduced operational costs for buildings.

In matter of contrast, the hot-arid and hot-arid-windy regions of Iran, represented by Yazd and Sistan respectively, exhibit different architectural responses to their environmental conditions. In Yazd, dwellings typically feature a courtyard aligned with the direction of Mecca (Qibla), which dictates the city's orientation. Conversely, in Sistan, the dominant direction of the wind determines the orientation of buildings. Despite similar levels of sunlight exposure in both regions, Yazd experiences minimal wind flows compared to Sistan.

Individuals in Sistan have opted to limit the presence of alleyways by constructing densely packed buildings, resulting in lower overall coverage compared to Yazd Sahebzadeh et al. (2017). These contrasting approaches illustrate how vernacular architecture adapts to and mitigates the unique challenges posed by different climatic conditions as demonstrated in Figure 18a.

 

Figure 18

Figure 18 (a). Aerial View of the Sistan Fabric (b) Yazd's Streets as Covered Passageways (on the left) and Sistan's Streets (on the Right).

Source Sahebzadeh et al. (2017)

 

In Yazd's vernacular architecture, special attention is given to mitigating the heat and intense sunlight of summer. Buildings are designed with narrow, east-to-west oriented canals, enclosed by high adobe walls on each side Shoaie & Habib (2014). These channels optimize shadow formation, creating a barrier of cool air at ground level that prevents warm air from descending to the lowest parts of the houses. Additionally, some walkways are covered or vaulted, forming Sabats (roofed alleys) Figure 18b, to provide further shading coverage. The dense fabric of narrow sidewalks further contributes to shading in the region.

Nubian Nomadic architecture is characterized by its decorative and inventive features. Mud brick walls, plastered with Kershef, are adorned with hieroglyphics, showcasing the artistic flair of the Nubian people. Nguyen et al. (2019) Courtyards with open windows provide passive cooling to the arid desert air, while arches and barrel vaults are used to deflect sunlight at certain angles instead of employing flat roofs Mahgoub (1990). Triangular apertures, known as pigeon holes, are positioned over each window opening to further control sunlight entry and ventilation. These architectural elements demonstrate the ingenuity and adaptability of Nubian architecture to the harsh desert environment.

 

8. CURRENT APPLICATIONS OF JODHPUR’S VERNACULAR ASPECTS AND MATERIALS

Acknowledging the pivotal role of the local community in contemporary vernacular architecture, designers are increasingly prioritizing an understanding of the community's architectural preference. A notable example is the Raas Haveli Hotel in Jodhpur, which exemplifies the preservation of heritage through the restoration of three period structures (dating from the 17th to the 18th century) located at the foothills of the Mehrangarh Fort. These structures have been meticulously restored using traditional craftsmanship and original materials such as lime mortar and Jodhpur sandstone, showcasing a commitment to honoring local architectural heritage while meeting modern standards of comfort and functionality. Pardo (2023), Xi et al. (2021)

 

 

 

 

Figure 19

Figure 19 View Showing a Connection Between Site and Surroundings B) Use of Local Materials.

Source Author

 

In the Raas Haveli Hotel project in Jodhpur, modern buildings constructed using the same materials and skills as traditional buildings are strategically integrated into the site to enhance the visual and spatial connection between historic structures and the Mehrangarh Fort. This approach fosters a dialogue between the old and the new Case Study on Raas Jodhpur Hotel, (2018). Vernacular elements such as old double-skinned structures, including the stone-latticed Jharokha, are utilized to define the site and create a sense of continuity with the surrounding architecture. The stone Jaali (lattice) partitions rose to allow visitors to open them for uninterrupted views of the fort or close them for privacy and protection from the sun, exemplify the incorporation of vernacular features into modern buildings with excellence. These elements not only pay homage to traditional architectural practices but also enhance the overall aesthetic and functionality of the space.

Figure 20

Figure 20 Showing Vernacular Stone Latticed Jharokha Forms of Jodhpur

Source Author

 

In the development of the Raas Jodhpur Hotel, 70% of the resources and labor were locally sourced, within a 30-kilometer radius (Raas Jodhpur / The Lotus Praxis Initiative, 2013). The construction materials include hand-cut stone and poured in situ colored cement terrazzo for floors, walls, and furniture. Rainwater runoff from the buildings and surrounding areas is collected in pits integrated into the landscape design. Additionally, the hotel emphasizes sustainability by solar-heating all hot water in guest rooms, aligning with Jodhpur's reputation as the "Suncity" in India.

Another exemplary project of Jodhpur vernacular architecture is the Shunyam single-family residence, which blends traditional and contemporary elements Ali (2013). The design prioritizes the region's culture, aesthetics, and climate, incorporating traditional construction techniques to meet modern living needs. Features such as stone Jaalis, courtyards, receding circular gaps, arches, and skylights are carefully selected to optimize natural ventilation and sunlight, fostering a strong connection between the built environment and its surroundings. Utilities and facilities are strategically located along the boundary to serve as an insulating barrier against the elements with separated built masses interconnected by Jaalis and sandstone arches, enhancing both functionality and aesthetic appeal. Meir & Roaf (2003), Srivastava & Das (2023)

Figure 21

A building with a wooden structure

Description automatically generated with medium confidence

Figure 21 Use of Pergolas and Jaalis in Shunyam House Jodhpur.

Source Ali (2013)

 

Figure 22

A diagram of a house

Description automatically generated

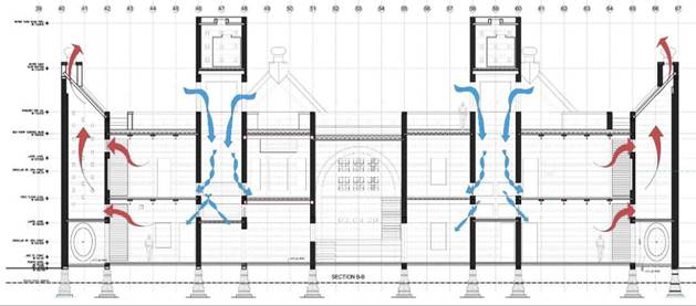
Figure 22 Passive Cross Ventilation Mechanism Used for Cooling.

Source Studio (2015)

 

The integration of passive air circulation techniques and traditional designs in modern architecture has become a hallmark of sustainable building practices in regions like Jodhpur. Local materials such as sandstone and Krana marble are prized for their thermal insulation properties, used in ceilings, walls, and flooring to mitigate heat transfer. Clay pots filled with lime mortar are utilized to insulate roofs, while Shisham wood flooring adds warmth to intimate spaces.

Traditional elements like carved brackets, Jaali screens, arches, and furniture crafted from natural materials contribute to the cohesive and interconnected arrangement of spaces, lending a sense of uniformity to the architecture of Jodhpur. Examples like the Pearl Academy of Fashion showcase how traditional vernacular components such as courtyards, water features, and Baoris are being adapted and incorporated into modern structures. The use of double-skin facades with brick Jalis acts as a heat buffer, while drip channels within the skins facilitate passive downdraft evaporative cooling. Thappa et al. (2022)

Innovative passive techniques like the Passive Downdraft Evaporative Cooling (PDEC) Technique, employed at the Torrent Research Center, have demonstrated significant energy savings and environmental benefits. By preserving 200 metric tons of AC Plant potential and reducing the need for artificial lighting, these techniques contribute to both cost savings and sustainability goals.

The evolving trends in vernacular architecture represent a fusion of traditional practices with contemporary design principles, driven by the need for sustainable and efficient building solutions. Architects and planners play a crucial role in preserving age-old traditions while exploring innovative connections between society, architecture, materials, and construction techniques. In the years to come, the challenge will be to identify and leverage these connections to create architecture that is both culturally rooted and responsive to contemporary needs.

 

9. CONCLUSION

The article provides a comprehensive examination of Jodhpur's hot and dry climate, delving into various factors such as sunlight, rainwater harvesting, terrain arrangement, and the use of indigenous materials for construction to highlight the benefits of traditional construction as a sustainable strategy. It explores the concept of 'thermal mass' in architecture, which has been prevalent for ages and is now recognized as an energy-saving aspect. By analyzing recurring forms, materials, and behaviors in vernacular architecture, the article suggests updated proposals for sustainable construction practices.

The utilization of ecologically friendly and locally available building materials such as sandstone, lime, mud, and sturdy grass for various building purposes, including foundation, masonry, roofing, and floor coverings, reduces expenses and encourages an indigenous approach to progress while enduring extreme climatic conditions. This approach minimizes the use of concrete or other contemporary building materials, which may be durable but have significant adverse effects on the environment.

The research distinguishes the levels of human comfort achieved through the incorporation of Vernacular Approaches, emphasizing cluster planning, street orientation, and the height-to-width ratio of streets with projections to define uninterrupted shaded areas. It highlights the significance of narrow alleys and cluster planning in generating an ambience of desired thermal comfort, considering the impact of dwelling blocks and street configuration on temperature regulation for pedestrians and inhabitants.

The rejuvenation of water bodies, both built and unbuilt, serves multiple purposes such as recreational activities, tourism, and natural temperature regulation. The use of local materials, particularly sandstone, enhances sustainability by reducing embodied energy and promoting the development of a green environment. The construction of broad walls and roofing in ancient times provided an advantage over standard construction techniques, leveraging the thermal inertia effect to retain heat during the day and release it at night.

Internal arrangements, including compact and inward-facing layouts, strategically position thermal constraints such as non-habitable spaces to optimize natural cooling effects, particularly in courtyards with stored water spaces and vegetation. Vernacular components like Jharokha Jaali aid in regulated wind circulation and shading roofs and windows, further enhancing thermal comfort.

By integrating vernacular methods with modern designs and standardization, designers can effectively improve human comfort, bring individuals closer to nature, and provide areas of solitude from rapid lifestyles. This approach enhances thermal performance, reduces maintenance expenses and carbon footprint, offers a unique identity to the built environment, and contributes to psychological fulfillment by fostering a connection to nature's recuperation process.

 

10. FUTURESCOPE

As we approach the current millennium, concerns about the potentially catastrophic consequences of climate change and the decline of the fossil fuel age have raised questions about the resilience of different types of constructions in the face of such challenges. Traditional vernacular prototypes, adapted to their specific climates, are seen as more suitable for providing sustainable designs in an era with limited energy resources compared to energy-intensive high-tech construction. This has led to a growing demand for the study of vernacular architecture, focusing on investigations into building materials, construction techniques, conservation issues, climate adaptation, and the redevelopment of discarded vernacular structures.

To ensure the preservation of vernacular architecture for future generations, interdisciplinary research is necessary, involving field studies in under-explored areas and integrating modern components and solutions into old vernacular structures to meet current comfort standards without compromising their essential characteristics.

Despite some challenges, modern architects are increasingly interested in adapting building models inspired by hot and dry climate vernacular architecture. However, studies have shown that in certain cases, vernacular architecture struggles to provide a comfortable environment in extreme weather conditions. This raises the question of how to address these challenges in vernacular structures while meeting modern human thermal comfort requirements.

The growing trend of incorporating traditional construction techniques into modern architecture is evident in regions such as Asia and Europe. Advances in computational modeling and the need to meet more stringent design requirements for sustainable buildings, such as green building assessments, are driving forces behind the integration of thermal comfort techniques.

In the foreseeable future, building performance research will play a crucial role in optimizing vernacular techniques for increased efficacy. The rise of extreme climate conditions has led to harsher interior environments and accelerated desertification processes, pushing more people into increasingly deprived housing. Passive techniques, with minimal economic and environmental costs, are being explored through the use of local traditional remedies or innovative strategies based on traditional building methods, including the use of regenerated or reused waste materials.

 

CONFLICT OF INTERESTS

None. 

 

ACKNOWLEDGMENTS

The authors confirm contribution to the paper as follows: Aruna Baghel, study conception and design, analysis and interpretation of results, and draft manuscript preparation. Priyanka Mehta, data curation and investigation, Anshu Agrawal, data collection and data curation. All authors reviewed the results and approved the final version of the manuscript. The authors affirm that they did not receive any funding to conduct this research.

 

REFERENCES

Afreen, S., Sabahat, M., & Khalil, S. N. (2018). Passive Design Techniques as a Sustainable Solution for Thermal Comfort in Transitional Spaces of an Institutional Building (A Case of Jaipur). International Journal of Science and Research, 9(7), 1011-1016. https://doi.org/10.21275/SR20715152848

Al-Sallal, K. A. (2016). Learning Sustainability from Arab Gulf Vernacular Architecture. In: Sayigh, A. (eds) Mediterranean Green Buildings & Renewable Energy. Springer, Cham. https://doi.org/10.1007/978-3-319-30746-6_69

Ali, B. (2013). Traditional Architecture of Jodhpur. 1-35.

Arora, A. (2018). Understanding the Adaptive Climate Responsive Techniques in the Settlements of Rajasthan. IPS Academy, Indore, Madhya Pradesh.

Arya, M. (2013). Courtyards. In Courtyards_India (p. 8).

Baghel, A., Kumhar, K., & Bohra, H. (2022). Bioclimatic Architecture : A Sustainable Approach to Meet Emerging Energy Demands of Jodhpur, India. Specialusis Ugdymas, 1(43), 9686-9706.

Balzani, M., Jain, M., & Rossato, L. (2013). Between History and Memory of Blue Jodhpur Experiences of Integrated Documentation and Survey Techniques. NBER Working Papers Maggioli, 89.   

Case Study on Raas Jodhpur Hotel, (2018).

CPWD. (2013). Integrated Green Design: for Urban & Rural Buildings in Hot-Dry Climate Zone. 24.

Chatterji, P.C., & Vangani, S. K. (1988). Reliable System of Rainwater Iiarvesting in the Indian Desert. Cazri Publications, 24.

Climatological Publication Section. (2009). India Meteorological Department. In Additional Director General of Meteorology, 16.

Dabaieh, M. (2011). A Future for the Past of Desert Vernacular Architecture. In Vernadoc Rww 2002(Issue OCTOBER 2013).

Doctor-Pingel, M., & Vardhan, V. (2020). Use of Lime Mortar and Post-Occupancy Thermal Performance Analysis of Buildings. In Encyclopedia of Renewable and Sustainable Materials, 1(5). https://doi.org/10.1016/B978-0-12-803581-8.11308-6

ECBC. (2017). Envelope for Hot and Dry Climate.

Fardeheb, F. (2007). Examination and Review of Passive Solar Cooling Strategies in Middle Eastern and North African Vernacular Architecture. ISES Solar World Congress 2007, ISES 2007, 4, 2511-2515. https://doi.org/10.1007/978-3-540-75997-3_508

Flat Roof Design: Thermal Insulation. (1976). Building Research Establishment Digest.

Gajjar, V., & Bhavsar, F. (2019). Ambiance Through Spatial Organization in Vernacular Architecture of Hot and Dry Regions of India − The Case of Ahmedabad and Jodhpur. SHS Web of Conferences, 64, 03002. https://doi.org/10.1051/shsconf/20196403002

Gallo, C. (1994). Bioclimatic Architecture. Renewable Energy, 5(5-8), 1021-1027. https://doi.org/10.1016/0960-1481(94)90129-5

Gopinath, D. (2000). Water Management in Arid Areas: Case Study of Jodhpur, Rajasthan, India. School of Planning and Architecture, Delhi, India, Dissertation.   

Goussous, J., Alzoubi, H., & Bader, G. (2023). The Impact of Using Natural Stone on Thermal Performance of Building Envelopes in Hot Regions: Case of Al-Karama Town, Jordan. Civil Engineering and Architecture, 11(5), 3125-3141. https://doi.org/10.13189/cea.2023.110823

Heidari, A., Taghipour, M., & Yarmahmoodi, Z. (2021). The Effect of Fixed External Shading Devices on Daylighting and Thermal Comfort in Residential Building. Journal of Daylighting, 8(2), 165-180. https://doi.org/10.15627/jd.2021.15

Hernández-Pérez, I., Álvarez, G., Gilbert, H., Xamán, J., Chávez, Y., & Shah, B. (2014). Thermal Performance of a Concrete Cool Roof Under Different Climatic Conditions of Mexico. Energy Procedia, 57(777), 1753-1762. https://doi.org/10.1016/j.egypro.2014.10.164

Hussain, J., Husain, I., & Arif, M. (2014). Water Resources Management: Traditional Technology and Communities as Part of the Solution. IAHS-AISH Proceedings and Reports, 364(June), 236-242. https://doi.org/10.5194/piahs-364-236-2014

Jain, M., & Jain, K. (2018). Climatic Conditions and Design Considerations for Hot and Dry Climate of Ahmedabad, India. International Journal of Research in Engineering, Science and Management, 1(9), 428-432.

Jha, N., & Dave, D. (2023). Passive Cooling Methods Adapted for Thermal Comfort in Havelies of Bikaner. International Journal For Multidisciplinary Research, 5(4), 1-12. https://doi.org/10.36948/ijfmr.2023.v05i04.5913

Ka, B., & Mahotsav, A. (2021). Energy Conservation Building Code 2017 (Revision 2021).

Kaur, G., Ahuja, A., Thakur, S. N., Pandit, M., Duraiswami, R., Singh, A., Kaur, P., Saini, J., Goswami, R. G., Prakash, J., Acharya, K., Singh, S., & Garg, S. (2020). Jodhpur Sandstone: an Architectonic Heritage Stone from India. Geoheritage 12, 16. https://doi.org/10.1007/s12371-020-00441-y

Khadgata, A., Tiwari, P. K., & Apurv, A. (2023). The Relevance of Manasara Planning Model in Walled Cities of India: An Assessment Review of Rajasthan. International Journal For Multidisciplinary Research, 5(3), 1-12. https://doi.org/10.36948/ijfmr.2023.v05i03.3866

Khoukhi, M., & Fezzioui, N. (2012). Thermal Comfort Design of Traditional Houses in Hot Dry Region of Algeria. International Journal of Energy and Environmental Engineering, 3(1), 1-9. https://doi.org/10.1186/2251-6832-3-5

Konar, M. (2007). Rainwater Harvesting in Rural India - Taankas in the Thar Desert. Waterlines, 25(4), 22-24. https://doi.org/10.3362/0262-8104.2007.022

Kumari, A., Wanti, J., Swamy, V., & Sakri, S. (2020). Vernacular Passive Cooling Techniques - A Case Study of a Vernacular House in Allur Village, Kalaburagi, India. International Journal of Engineering Research And, V9(08), 334-341. https://doi.org/10.17577/ijertv9is080150

Leo Samuel, D. G., Dharmasastha, K., Shiva Nagendra, S. M., & Maiya, M. P. (2017). Thermal Comfort in Traditional Buildings Composed of Local and Modern Construction Materials. International Journal of Sustainable Built Environment, 6(2), 463-475. https://doi.org/10.1016/j.ijsbe.2017.08.001

Mahdy, M. (2018). Vernacular Urbanism in Hot Arid Climate Zones in Egypt and the Challenges of Climate Change. January, 0-10.  

Mahgoub, Y. O. M. (1990). The Nubian Experience: A Study of Social and Cultural Meaning of Architecture. University of Michigan.  

Makhlouf, N. N., Maskell, D., Marsh, A., Natarajan, S., Dabaieh, M., & Afify, M. M. (2019). Hygrothermal Performance of Vernacular Stone in a Desert Climate. Construction and Building Materials, 216, 687-696. https://doi.org/10.1016/j.conbuildmat.2019.04.244

Meir, I. A., & Roaf, S. C. (2003). The Future of the Vernacular Towards New Methodologies. Vernacular Architecture in the Twenty-First Century: Theory, Education and Practice., September 2014, 215-230.

Modi, A. N., & Baghel, A. (2021a). A Comparitive Analysis for Energy Efficient Materials and Assemblies in Roofing. Journal of Institution of Public Health Engineers, 2, 5-13.

Modi, A. N., & Baghel, A. (2021b). Analysis for a Sustainable Wall Assembly in terms of Embodied Energy and Efficiency in Heat Insulation. Journal of Institution of Public Health Engineers, number 2, 10-20.

Mourad, M. M., Ali, A. H. H., Ookawara, S., & Abdel-Rahman, A. K. (2005). Energy Efficiency in Architecture:An Overview of Design Concepts and Architectural Interventions. Engineering, Environmental Science, 17.  

Nations, U., Programme, D., Labour, I., Public, L. S., Programmes, W., & Office, I. L. (1992). Stone Masonry.

Nguyen, A. T., Truong, N. S. H., Rockwood, D., & Tran Le, A. D. (2019). Studies on Sustainable Features of Vernacular Architecture in Different Regions Across the World: A Comprehensive Synthesis and Evaluation. Frontiers of Architectural Research, 8(4), 535-548. https://doi.org/10.1016/j.foar.2019.07.006

Pardo, J. M. F. (2023). Challenges and Current Research Trends for Vernacular Architecture in a Global World: A Literature Review. Buildings, 13(1). https://doi.org/10.3390/buildings13010162

Patil, A. R. (2020). Life Cycle Analysis and Embodied Energy : A Review. International Journal of Advance Research, Ideas and Innovations in Technology, 6(3), 275-282.

Patil, S. (2015). Reviewing the Indira Awas Yojana, Politics of an Awas. Journal of the Development and Reasearch Organisation for Nature, 11, 151-160.

Pearlmutter, D., & Berliner, P. (1999). Urban Microclimate in the Desert: Planning for Outdoor Comfort under Arid Conditions. Desert Regions, June 1998, 279-289. https://doi.org/10.1007/978-3-642-60171-2_16

Rai, S. C., & Mishra, P. K. (2023). Traditional Ecological Knowledge of Resource Management in Asia. https://doi.org/10.1007/978-3-031-16840-6

Rajashree, B. V, & Sharma, J. R. (2007). Rapid Urbanization in Desert Towns - A Case Study of Sun City Jodhpur using Geo-Informatics. ISG Newsletter, 13(2&3), 4-12.  

Rao, A. S. (2009). Climate and Microclimate Changes Influencing the Fauna of the Hot Indian Arid Zone. Faunal Ecology and Conservation of the Great Indian Desert, 13-23. https://doi.org/10.1007/978-3-540-87409-6_2

Rathore, M., Sharma, S., & Preet, V. (2018). Analysis of Traditional and Existing Construction Practices for Sustainable Rural Houses in the Southern Western Part of Rajasthan. 1-7.   

Reddy, P. P. B. (2019). MHRD Project Under its National Mission on Education through ICT.

Sahebzadeh, S., Heidari, A., Kamelnia, H., & Baghbani, A. (2017). Sustainability Features of Iran's Vernacular Architecture: A Comparative Study Between the Architecture of Hot-Arid and Hot- Arid-Windy Regions. Sustainability (Switzerland), 9(5). https://doi.org/10.3390/su9050749

Sakr, A. (2011). The Vernacular Architectural Ventilation Techniques in Hot-Dry Climates - Techniques Probabilities and Implementation in Australian Arid Zones. July 2011. https://doi.org/10.13140/RG.2.1.2728.9126

Saxena, D. (2017). Water Conservation: Traditional Rain Water Harvesting Systems in Rajasthan. International Journal of Engineering Trends and Technology, 52(2), 91-98. https://doi.org/10.14445/22315381/ijett-v52p215

Shah, D. (2017). Traditional Construction Material Used in Rajasthan.

Sharma, P., Sharma, S. K., & Preet, V. (2018). Impact of Modern Construction Practices as Compare to Traditional Construction for Sustainable Rural Houses in the Northern Eastern Part of Rajasthan. International Journal of Engineering Research & Technology (IJERT), 6(11), 1-6.  

Shoaie, H., & Habib, F. (2014). Iranian Sustainable Vernacular Architecture. Advances in Environmental Biology, 7(13), 4451-4459.

Sridharan, N., Pandey, R. U., & Berger, T. (2019). Case Study-10 Enhancing Institutional and Community Resilience to Climate Change Impacts in the Jodhpur City : Heat Stress. ERAMUS+, 28.

Srivastava, A., & Das, B. K. (2023). Vernacular Architecture in India : A Review Article Vernacular Architecture in India : A Review Article. March. https://doi.org/10.13140/RG.2.2.32359.93606

Studio, T. (2015). A Vernacular Retreat.     

Taleghani, M., & Tenpierik, M. (1986). Environmental Impact of Courtyards - A Review and Comparison of Residential. Journal of Green Building, 7(2), 113-136.

Thappa, A., Sharma, A. K., & Kumar, S. (2022). Understanding Vernacular Architecture in Terms of Sustainability: Lessons from Turkey and India. ISVS E-Journal, 9(1).

Thirumalini, P., & Sekar, S. K. (2011). Review on Herbs used as Admixture in Lime Mortar used in Ancient Structures. Indian Journal of Applied Research, 3(8), 295-298. https://doi.org/10.15373/2249555x/aug2013/93

Tyagi, B. K. (2023). Tanka' and 'Beri': The Most Crucial Habitats for Breeding of Anopheles stephensi and Emergence of "Desert Malaria" in the Thar Desert. Springer, Singapore. https://doi.org/10.1007/978-981-19-7693-3_5

Upadhyaya, V. (2017). Transformation in Traditional Havelis : A Case of Walled City Jaipur, Rajasthan. Imperial Journal of Interdisciplinary Research, 3(2), 1482-1492.   

Vaishnava, A. (2023). Traditional Rain Water Harvesting in the State of Rajasthan. International Journal For Multidisciplinary Research, 5(2), 1-10.  

Xi, P., Xiao, X., & Jingxuan, S. (2021). A Study on Design Strategies of Vernacular Architecture Based on Data Analysis of Community's Architectural Preference. E3S Web of Conferences, 236.        

Creative Commons Licence This work is licensed under a: Creative Commons Attribution 4.0 International License

© ShodhKosh 2024. All Rights Reserved.